发布日期:2025-02-05 11:16 点击次数:129

小宅空间
Büro Blanca新作,这间只有19㎡的微型公寓,设计师Aleksandra Ermilova为自己设计的家,室内高度为4.6米,她通过建造一个室内层,将有用面积增加了11㎡-在这里创建了一个睡眠区和一个衣柜。

空间布局▽

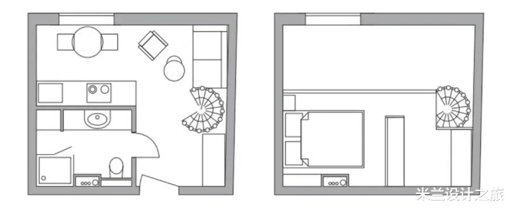
一楼规划(19㎡):走廊、浴室和厨房客厅。二楼(11㎡):卧室和更衣室。即使在这么小的空间里,也能容纳舒适生活所需的一切。房子里最喜欢的地方是大窗户旁边的桌子。



任何项目中最重要的是考虑到所有细节的有效布局。在这个室内有民族、阁楼、生态风格的元素,有复古的家具。夹层楼的高度足够高,可以为下面的上层厨房橱柜留出空间。厨房紧凑而实用,但没有抽油烟机,因为大窗户足以让房间通风。




上层放置了一张140厘米宽的床,两边都留有空间。金属栏杆是釉面的,就像衣柜的侧面一样,因此整个结构具有更轻盈的外观,并且不会阻挡自然光的流动。




胡桃木地板,家具和装饰保持在最低限度,使空间感不受限制,每个空间都得到最大限度的利用。浴室配备了比浴缸更节省空间的淋浴间,也为洗衣机留出了空间。

